Description de l'offre
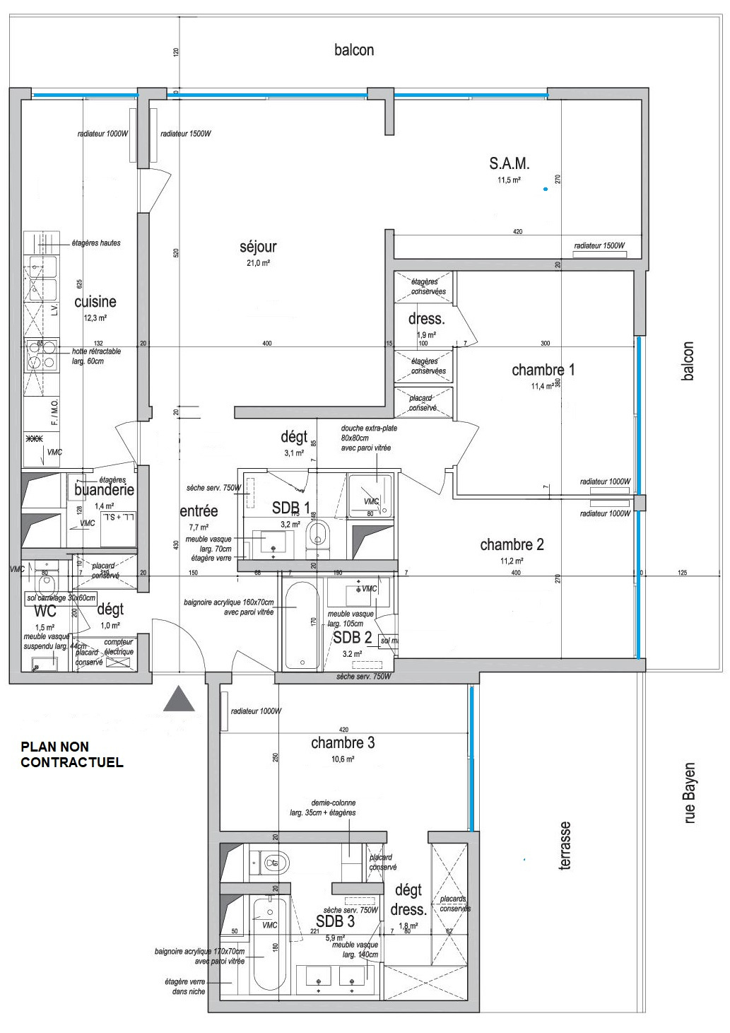
Rue Bayen, dans un bel immeuble moderne avec gardien, situé au 6ème étage avec double exposition et vue très dégagée sur la verdure du square Olave & Robert Baden-Powell, nous vous proposons ce bel appartement très lumineux de 5 pièces principales, d'une surface habitable de 113,04m² Carrez. Il se compose d'une entrée, un grand séjour et une salle à manger avec de grandes baies vitrées coulissantes, une cuisine moderne aménagée et équipée avec coin repas, trois chambres, deux salles de bains et une salle d'eau, trois WC, buanderie et rangements. La 1ère chambre dispose d'un dressing, la 2ème d'une salle de bains privative et la 3ème est une Master Bedroom avec dressing et salle de bains / wc. Belles prestations modernes, parquet au sol. Toutes les pièces de vie ouvrent sur le balcon (24m² environ) et la Master Bedroom ouvre sur sur une terrrasse de 16m² environ. Possibilité de fermer l'espace salle à manger pour en faire une 4ème chambre. Pour compléter ce bien, au sous-sol de l'immeuble, un Box double pour voitures côte à côte, et une cave. Chauffage individuel électrique complété par un chauffage collectif au sol d'appoint uniquement; eau chaude collective.

