Description de l'offre
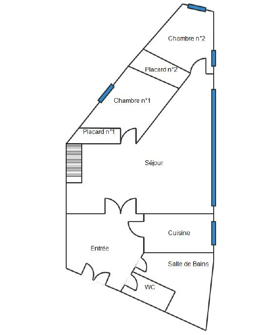
SECTEUR SEVRES-LECOURBE; Boulevard GARIBALDI - A proximité des commerces, au pied de la station de métro Sèvres-Lecourbe (ligne 10), dans un bel immeuble ancien bien entretenu, au 1er étage sans ascenseur, nous vous proposons à la location ce joli DUPLEX DE 4 PIECES EN PARFAIT ETAT, entièrement rénové, d'une superficie de 90.16 m². Il dispose d'une entrée, un beau séjour avec une très grande hauteur sous plafond (environ 4 mètres) et de très grandes fenêtres type atelier amenant beaucoup de luminosité, une cuisine séparée entièrement neuve et moderne, aménagée et semi-équipée (plaques vitrocéramiques, hotte), trois chambres dont deux avec placards/dressing, une mezzanine, une salle de bains avec baignoire et meuble double vasques et un WC séparé. Chauffage et eau chaude par chaudière au gaz individuelle. Parquet au sol. DISPONIBLE IMMEDIATEMENT; Possibilité de louer en supplément pour 130€/mois, un emplacement de stationnement au 2ème sous-sol d'un immeuble voisin, pour un véhicule de type berline. Honoraires renseignés valables uniquement pour un bail consenti à une personne physique pour son habitation principale

